Riga House

2020 - Riga, Latvia

Project Facts

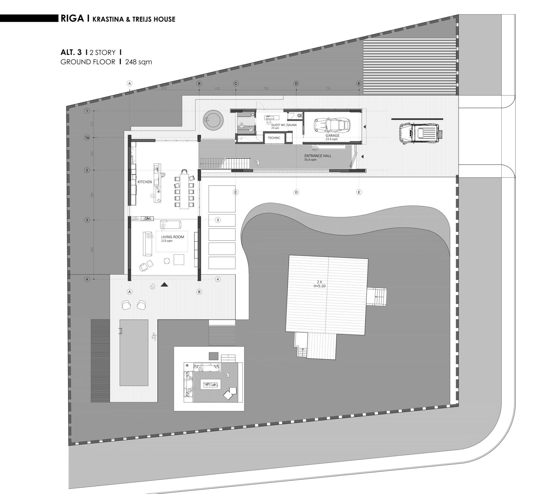
In Riga / Latvia,  4 people family house

Type

Project Date 2020

Location Riga, Latvia

Construction Area 430 sqm

Similar Projects

Mogadishu General Hospital

2021 - Mogadishu, Somalia

Duhok General Hospital

2011 - Iraq

Award

2012 / National Architectural Competition Proposal

1st Prize

Republic of Turkey Central Bank Gaziantep Branch Building

2012 - Gaziantep, Turkey